石金の立地良好な場所に中古住宅がでてまいりました。裏がすぐローソン様なので、買い物も便利です。又、スーパーのアップルサンショウ食菜館栄町店様が徒歩4分、東部小学校が徒歩4分、「不二越駅」まで徒歩4分、バス停「石金」からは総曲輪や富山駅方面まで直通でいけるという立地になります。病院も県立中央病院が徒歩9分と生活に必要な施設が徒歩10分以内にあり立地良好なお家になります。それと、スーパー銭湯の「満天の湯」様も徒歩4分とお風呂好きの方にはうってつけの場所にもなります。お家に関しては実際にお家を見ていただければ分かりますが、リフォームは必要なお家かと考えます。しかし、昨今の建築費の高騰を考えて、新築ではなくリノベーションを考えられてお家を探されている方にはおすすめのお家になります。売却金額も建物価値を0円で考慮した金額にしていますので、是非一度、内見していただくことをおすすめいたします。不動産売買歴10年以上のスタッフが対応していますので、安心してお問い合わせください。
- 価格
- 1,300万円
- 種別
- 建付土地
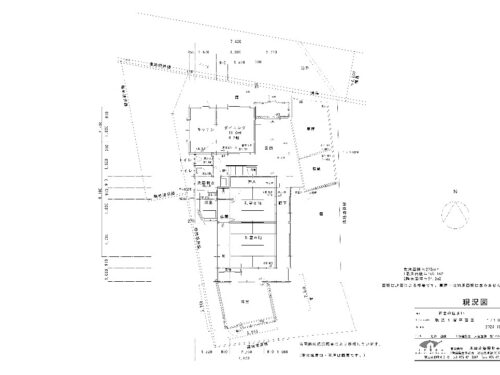
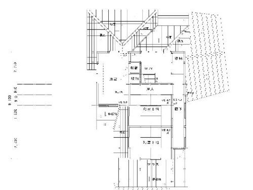
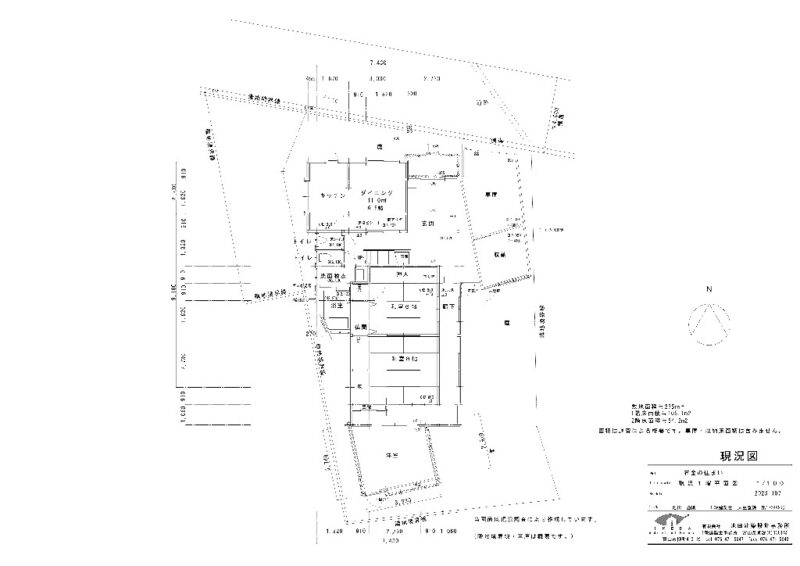
- 間取
- 6DK
-
- 所在地
- 富山県富山市富山市石金一丁目
- 交通
- 富山地方鉄道不二越上滝線 不二越駅 徒歩4分
バス(地鉄「石金」バス 停歩3分)
物件詳細
| 駐車場 | P3台可 | 取引態様 | 一般 |
|---|---|---|---|
| 引渡/入居時期 | 即時 | 現況 | 古屋あり |
| 地目 | 宅地 | 用途地域 | 近隣商業 |
| 都市計画 | 市街化区域 | 地勢 | |
| 土地面積 | 273.24m² | 土地面積計測方式 | 公簿 |
| セットバック | 無 | セットバック量 | |
| 建ぺい率 | 80% | 容積率 | 300% |
| 土地権利 | 所有権 | 接道状況 | 一方 |
| 接道方向1 | 北 | 接道間口1 | 13.5m |
| 接道種別1 | 公道 | 接道幅員1 | 4m |
| 周辺環境 |
東部小学校 東部中学校 アップルサンショウ食菜館栄町店:徒歩4分(約260m)、ローソン富山石金店:徒歩1分(約60m)、クスリのアオキ西長江店:徒歩5分(約390m)、石金こども園:徒歩6分(約430m)、富山県立中央病院:徒歩9分(約680m)、満天の湯:徒歩4分(約260m)、富山市立東部小学校:徒歩4分(約240m)、富山市立東部中学校:徒歩14分(約1150m) |
||
| 設備・条件 | 都市ガス 公営水道 排水下水 | ||
| 物件番号 | 100108 | ||
| 特記事項 | ・都市ガスは前面道路に配管有り、敷地内にはございません。 ・固定資産税調査中 ・町内会費は調査中 ・未登記車庫あります。 ・準防火地域内になります。 ・契約不適合責任は負いません。 | ||
Loading...
※物件掲載内容と現況に相違がある場合は現況を優先と致します。
Contact
お問い合わせはこちらからお寄せください
お電話からのご予約・お問い合わせ
TEL:076-460-0329
営業時間:8:00~19:00
定休日:不定休
WEBからのご予約・お問い合わせ


















