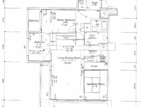
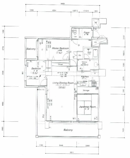
お待たせしました。高岡の中心部に魅力的なお部屋がでてまいりました。ペット可で角部屋の広々とした3LDKのお部屋です、お部屋の大きさは約25坪もありますので廊下等もゆとりのある設計になっています。。バルコニーも2面あり、面積も25.29㎡(壁芯)と魅惑的な広さになります。お部屋の程度も良好です。又、日当たりも良好でスギ薬局も近くにあり立地も良好なお部屋になります。不動産のバトンおすすめのお部屋になりますので、是非一度ご内覧して頂く事をおすすめいたします。
- 価格
- 2,080万円
- 種別
- 中古マンション
- 間取
- 3LDK
-
- 所在地
- 富山県高岡市向野町3丁目 アパガーデンハイツ高岡
- 交通
- 万葉線 市民病院前駅 徒歩3分
物件詳細
| 築年月 | 2000/10 | 新築/中古 | 中古 |
|---|---|---|---|
| 面積 | 88.50m² | 計測方式 | 壁芯 |
| バルコニー | 25.29m² | 向き | 南西 |
| 建物階数 | 地上10階 | 部屋階数 | 3階 |
| 部屋/区画番号 | 4302 | 総戸/区画数 | 32 |
| 建物構造 | RC | ||
| 管理形態 | 全部委託 管理人日勤 管理組合有 | ||
| 間取内容 | LDK20.8畳 洋室7.4畳 洋室5.5畳 和室6畳 | ||
| 住宅保険料 | 修繕積立金 | 17,700円/月 | |
| 管理費 | 11,000円/月 | 共益費 | |
| 駐車場 | 13,000円/月 空有 駐車場は、現在の所有者から承継はされません。抽選になりますので、同じ区画を保証はできません。但し、全戸に一台分の割り当てはあります。金額は5,000円~13,000円/月 | 取引態様 | 専属 |
| 引渡/入居時期 | 即時 | 現況 | 空家 |
| 地目 | 宅地 | 用途地域 | |
| 周辺環境 |
高岡市立成美小学校 高岡市立志賀野中学校 |
||
| 設備・条件 | ペット対応 ガスコンロ 三口コンロ バス専用 物入 都市ガス 公営水道 排水下水 エレベータ 宅配ボックス 駐車場有 駐輪場 バルコニー フローリング デザイナーズ 現在の所有者様で都市ガスからの暖房機を使用中。現在使用されているエアコンは保証はできませんので、引渡し前なら撤去も可能。 |
||
| 物件番号 | 100105 | ||
| 自社物 | 状態 | 売出中 | |
| 特記事項 | 固定資産税:132,000円/年 入居時、修繕基金:18万円 管理基金:10万円 | ||
Loading...
※物件掲載内容と現況に相違がある場合は現況を優先と致します。
Contact
お問い合わせはこちらからお寄せください
お電話からのご予約・お問い合わせ
TEL:076-460-0329
営業時間:8:00~19:00
定休日:不定休
WEBからのご予約・お問い合わせ

































